+7 (800) 350-85-65*

*Звонок по РФ бесплатный

Ваш регион:

Септик Топас 15 в Нахабино

Розничная цена:

361 100 руб.

Цена Топас 15:

324 990 руб.

Купить в кредит
  • Стоимость доставки до 150 км от Нахабино -
    0 руб.
  • Стоимость доставки свыше 150 км от Нахабино - 30 руб / км.

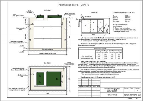
Технические характеристики Топас 15

  • Количество пользователей: 15
  • Залповый сброс: 850 л
  • Производительность: 3 м3/сут
  • Максимальная глубина врезки подводящей трубы: 85 м
  • Потребляемая энергия: 2 кВт/сут
  • Вес: 550 кг
  • Габариты: 2.1x1.18x2.5 м
  • Цены на Монтаж

  • Модификации

  • Документация

  • Монтажные схемы

  • Отвод сточных вод

  • Выполненные монтажи

  • Доставка и оплата

Варианты отвода сточных вод

Дренажный способ отвода водостоков

Накопительный резервуар
для отвода сточных вод

Отведение очищенной воды из “Топас”
в промежуточный (смотровой) колодец

Отвод в водоем
с установленным УФ блоком

Подробнее о вариантах отвода сточных вод

Доставка

  1. Доставка по Москве и всей Московской области осуществляется внутренними логистическими силами компании.
  2. Сроки доставки — от 1 дня после заказа септика.
  3. Цены на доставку:
    • по Москве бесплатно,
    • до 100 км от МКАД – 5500 руб., далее 45 руб. за километр,
    • за пределы Московской Области - по согласованию с менеджером.

Оплата

Оплата за автономную канализацию и монтажные работы возможна несколькими способами.

  1. Наличными в офисе или у вас на участке.
  2. По счету от юридического лица
  3. QR -кодом - выездная касса.

Гарантии

  1. Гарантия на корпус очистного сооружения – 10 лет
  2. Гарантия на компрессорное оборудование – 3 года

Видео: все, что Вы хотели знать о Топас

Остались вопросы? Свяжитесь с нами!

Мы всегда готовы бесплатно проконсультировать по вопросам, связанным с продукцией Топас, а также помочь с выбором оптимальной модели септика для решения ваших задач.

Подберите септик
и получите

скидку 10%

Сэкономьте время и деньги!

Подобрать

Подбор септика + скидка